0532-85879888
当前位置:CAD下载

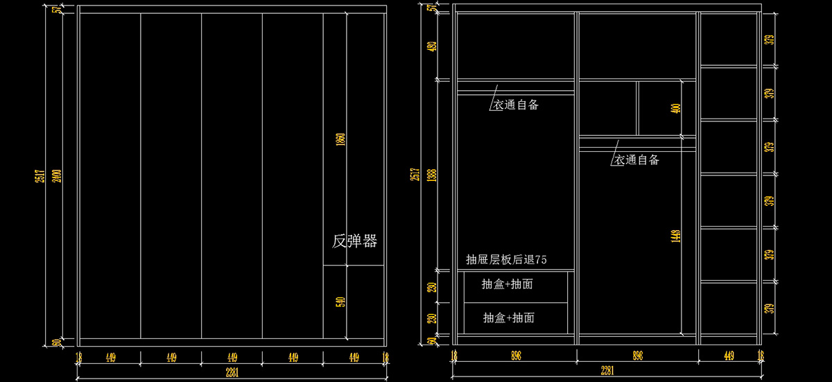
HS-CAD-YG-g1218

分类:衣柜
宽度:1218
标题:HS-CAD-YG-g1218
工厂编号:0
下载地址:gao/HS-CAD-YG-g1218.dwg