0532-85879888
当前位置:CAD下载

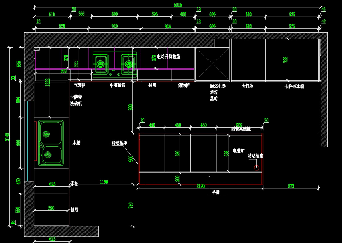
HS-CAD-DT-g149

分类:岛台
宽度:2190
标题:HS-CAD-DT-g149
工厂编号:0
下载地址:gao/HS-CAD-DT-g149.dwg