☏
0532-85879888
下载中心
CAD下载
首页
橱柜
衣柜
书柜
酒柜
鞋柜
洗衣柜
玄关柜
电视柜
阳台柜
榻榻米
衣帽间
浴室柜
餐边柜
房间门
墙板
当前位置:CAD下载
分类
全部
橱柜
衣柜
酒柜
衣帽间
高定柜
电视柜
书柜
玄关柜
阳台柜
书桌
榻榻米
鞋柜
餐边柜
岛台
卫浴柜
床箱
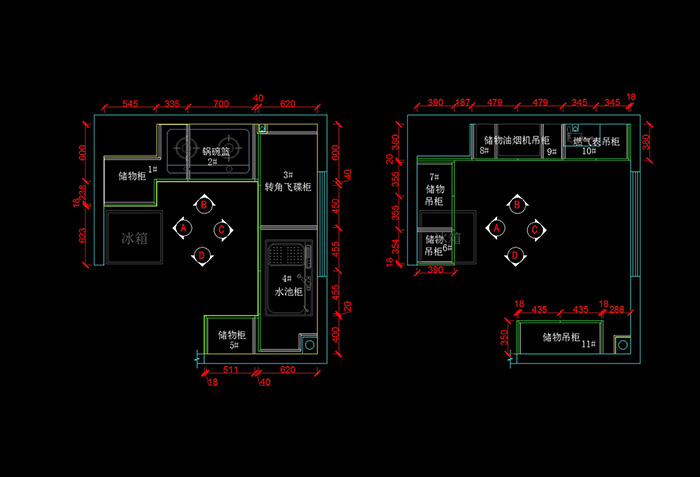
HS-CAD-CG-XY198
橱柜
宽度:2420mm
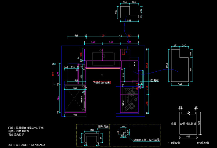
HS-CAD-CG-g346
橱柜
宽度:2420mm
HS-CAD-CG-g397
橱柜
宽度:2420mm
HS-CAD-CG-g786
橱柜
宽度:2420mm
HS-CAD-CG-g1143
橱柜
宽度:2421mm
HS-CAD-CG-XY897
橱柜
宽度:2421mm
再次生成
生成中……